Bilocale in vendita

Carmignano, Via del Pontormo
€ 60.000
2 locali 2 locali
100 Mq 100 Mq
1 bagno 1 bagno

Bilocale in vendita

Carmignano, Via del Pontormo

Descrizione annuncio

VIA PONTORMO - CARMIGNANO.

Carmignano – Centro storico

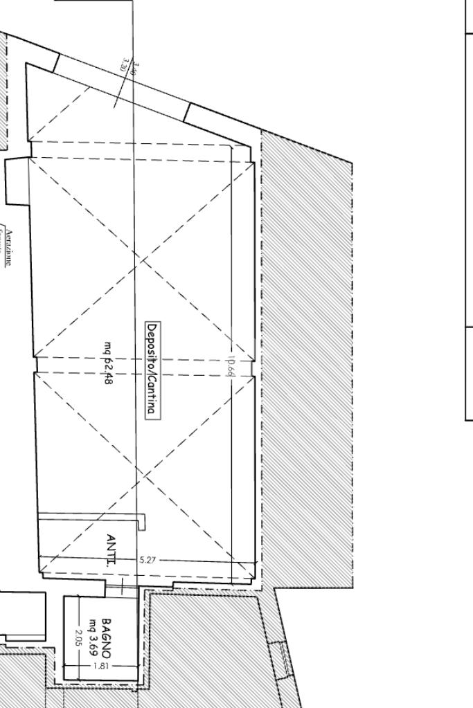
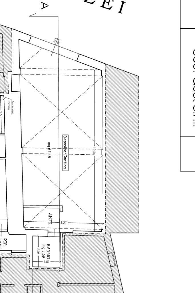
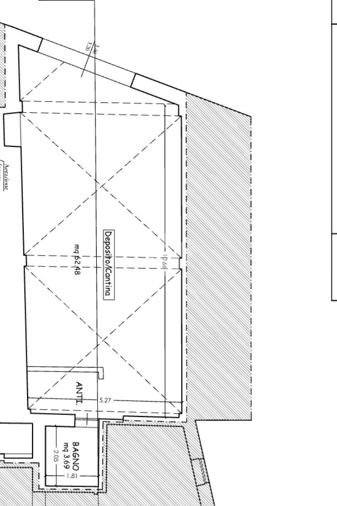
Nel cuore di Carmignano proponiamo in vendita locale accatastato C/2 di circa 100 mq, con ingresso indipendente direttamente dalla strada.

L’immobile si sviluppa su un unico livello ed è composto da un ampio vano principale, facilmente personalizzabile in base alle proprie esigenze, ed è dotato di bagno.

Gli spazi generosi e la metratura regolare consentono una grande versatilità d’uso.

La posizione centrale lo rende particolarmente interessante come magazzino, deposito, laboratorio, archivio, oppure come spazio di supporto ad attività presenti in zona. L’ingresso indipendente garantisce comodità di accesso e autonomia.

Soluzione ideale per chi cerca un ambiente funzionale in zona servita e facilmente raggiungibile, a pochi passi da tutti i principali servizi del paese.

Mostra tutto

Nelle vicinanze

Trasporto pubblico Trasporto pubblico
Carmignano Sn
Carmignano Sn
50 m
P.Za Vit.Emanuele 33
P.Za Vit.Emanuele 33
80 m
Scuole Scuole
Scuole
270 m
Farmacia Farmacia
Farmácia
1,7 Km
Farmacia
2,2 Km
Zeppini
2,9 Km
Supermercati Supermercati
Supermercato Coop Seano
1,8 Km
Pam
2,6 Km
Chinese market
2,7 Km
Penny Market
2,9 Km
Negozi Negozi
Forno Bellini
2,8 Km
Bar Bar
Bar
2,7 Km
Bar Lenzi Valerio
2,8 Km
Circolo Ambra
2,8 Km
Circolo Arci
2,9 Km
Ristoranti Ristoranti
Osteria Dei Mercanti
0 m
Barco Reale
60 m
Ristorante i'Prugnolo
1,7 Km
I'Ritrovo
1,9 Km
La Furba
2,3 Km
Mostra tutto

Caratteristiche

Rif.:
61171220
Piano:
Terra di 2
Totale piani:
2
Arredamento:
Assente
Condizionamento:
Assente
Ascensore:
No
Mostra tutto
Prezzo Prezzo
€ 60.000
Rata mutuo Rata mutuo
€ 285 / mese
Spese annue Spese annue
€ 0
Proponi il tuo prezzoProponi il tuo prezzo

Classe Energetica

Questo immobile è esente da classe energetica
Anno di costruzione:
2010
Riscaldamento:
Autonomo
Tipo impianto:
A radiatori
Tipo alimentazione:
Metano

Ti interessa visionare l'immobile?

Fissa un appuntamento  Fissa un appuntamento

Richiedi informazioni

Clicca su Leggi per aprire l'informativa
* Questi campi sono obbligatori

Calcola il tuo mutuo

Semplice e senza impegno
Anticipo

( % )
Mutuo

( % )

pochi semplici passi

inserisci i tuoi dati
Questionario completato
Grazie per aver richiesto un appuntamento senza impegno con un nostro Consulente del Credito e Assicurativo.

Hai inserito correttamente tutti i dati necessari e a breve riceverai una e-mail con un link da convalidare per inviare i tuoi dati.
Affiliato
Studio Poggio Sas
Via Ardengo Soffici, 95/b 59016 Poggio A Caiano (PO)

Il nostro staff


  • Francesca Romagnoli
    Affiliata

  • Shana Maretti
    Collaboratrice

  • Martina Pompa
    Collaboratrice

  • Costanza Salvatore
    Coordinatrice
Via Ardengo Soffici, 95/b 59016 Poggio A Caiano (PO)
Zona: Poggio a Caiano - La Serra - Poggetto
Mostra su mappa
Affiliato
Studio Poggio Sas
Via Ardengo Soffici, 95/b 59016 Poggio A Caiano (PO)

2026 Tecnocasa Franchising S.p.A. - P. IVA 08365160152 - Via Monte Bianco 60/A 20089 Rozzano (MI). Ogni agenzia ha un proprio titolare ed è autonoma. Privacy policy | Policy utilizzo | Cookie policy