Villa a schiera d'angolo in vendita

Carmignano, Via Baccheretana - Seano
€ 499.000
6 locali 6 locali
180 Mq 180 Mq
3 bagni 3 bagni

Villa a schiera d'angolo in vendita

Carmignano, Via Baccheretana - Seano

Descrizione annuncio

VIA BACCHERETANA - SEANO.

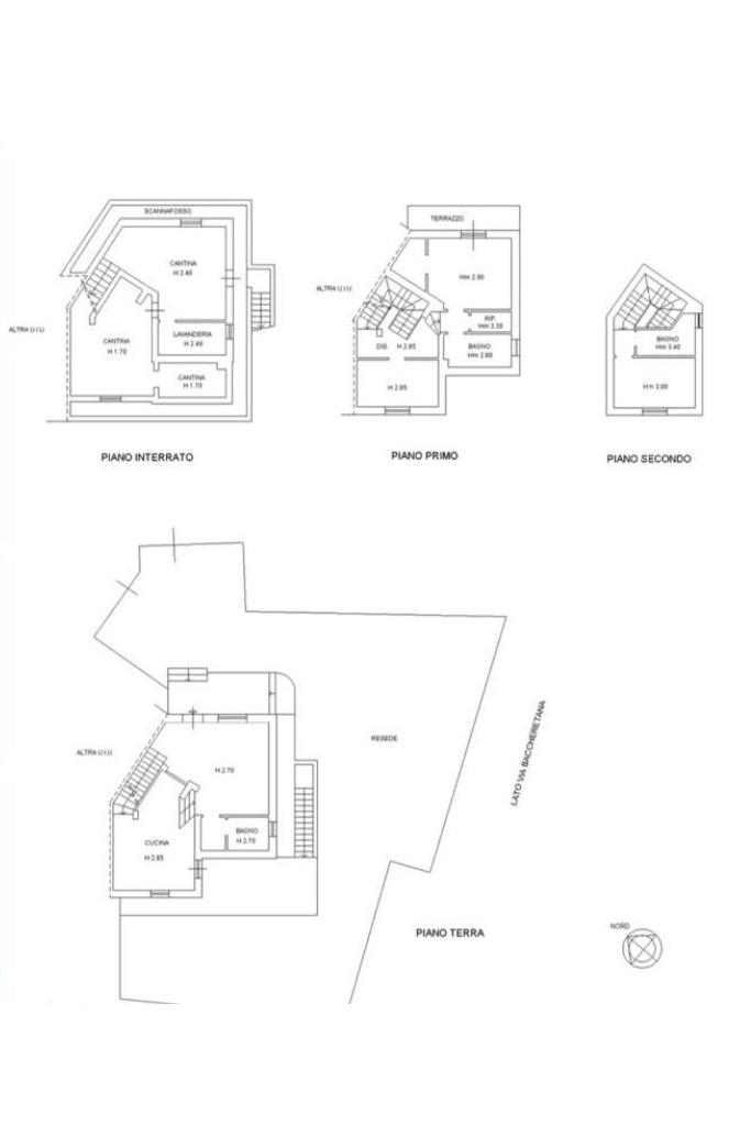
In posizione collinare e riservata, nella zona di Seano, all’interno di Via Baccheretana e inserita in una tranquilla corte interna, proponiamo in vendita una graziosa villetta libera su tre lati, caratterizzata da ottima privacy e da un contesto silenzioso ma al tempo stesso comodo ai principali servizi.

L’immobile dispone di doppio accesso, sia carrabile che pedonale, ed è circondato da un ampio spazio esterno vivibile, ideale per momenti di relax all’aperto, pranzi e cene in compagnia o per chi desidera uno spazio verde da personalizzare.

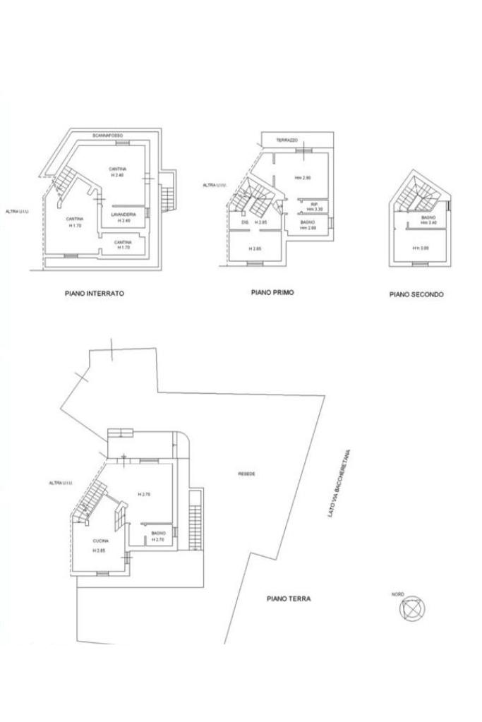
Al piano terra l’abitazione si apre su un accogliente soggiorno, impreziosito da camino, perfetto per creare un’atmosfera calda e familiare. La cucina è abitabile e ben organizzata, con accesso diretto al giardino tramite porta finestra, rendendo molto funzionale il collegamento tra interno ed esterno. Completa il piano un bagno finestrato.

Dalla cucina si accede al piano seminterrato dove si sviluppa la cantina attualmente adibita a taverna, attrezzata con un’ulteriore cucina con camino e forno a legna. Anche da questo livello è possibile raggiungere il giardino tramite una comoda scala esterna. Nel piano cantina è inoltre presente una stanza adibita a zona lavanderia.

Il piano primo ospita la zona notte, composta da una camera matrimoniale con guardaroba, una cameretta, un vano ripostiglio utilizzabile anche come studio o cabina armadio e un bagno finestrato. Salendo al piano superiore troviamo un locale attualmente adibito ad ulteriore camera, con bagno privato.

La villetta è stata costruita nel 2008 e si presenta in buone condizioni generali. L'immobile presenta alcuni lavori di ristrutturazione.

L’abitazione è inoltre dotata di inferriate su tutte le aperture, caldaia sostituita recentemente (circa 2 anni), eleganti rifiniture in ferro battuto,finiture interne curate con parquet nella zona notte e ceramica in soggiorno e cucina.

Una soluzione completa e ben distribuita, ideale per chi cerca una casa indipendente, spaziosa e immersa nella tranquillità delle colline di Seano, senza rinunciare alla comodità della vicinanza ai principali collegamenti.

Per visionare l'immobile e/o prendere un appuntamento contattare il numero 055877088 oppure inviare una mail a pohs3 .

Mostra tutto

Nelle vicinanze

Trasporto pubblico Trasporto pubblico
Baccheretana 366
Baccheretana 366
30 m
Baccheretana 362
Baccheretana 362
30 m
Scuole Scuole
Scuole
1,2 Km
Farmacia Farmacia
Farmácia
360 m
Farmacia
1,2 Km
Farmacia Eredi Dr. Miani
2,9 Km
Supermercati Supermercati
Supermercato Coop Seano
470 m
Alimentari ballerini
2,7 Km
Ristoranti Ristoranti
Ristorante i'Prugnolo
440 m
I'Ritrovo
1,1 Km
Ristoranti
1,3 Km
Osteria I' Ficarello
1,6 Km
Barco Reale
1,8 Km
Mostra tutto

Caratteristiche

Rif.:
61164446
Piano:
Su più livelli di 3
Totale piani:
3
Posti auto:
4
Balconi:
1
Camere da letto:
3
Mostra tutto
Prezzo Prezzo
€ 499.000
Rata mutuo Rata mutuo
€ 2.368 / mese
Spese annue Spese annue
€ 0
Proponi il tuo prezzoProponi il tuo prezzo

Classe Energetica

Questo immobile è esente da classe energetica
Anno di costruzione:
2008
Riscaldamento:
Autonomo
Tipo impianto:
A radiatori
Tipo alimentazione:
Metano

Ti interessa visionare l'immobile?

Fissa un appuntamento  Fissa un appuntamento

Richiedi informazioni

Clicca su Leggi per aprire l'informativa
* Questi campi sono obbligatori

Calcola il tuo mutuo

Semplice e senza impegno
Anticipo

( % )
Mutuo

( % )

pochi semplici passi

inserisci i tuoi dati
Questionario completato
Grazie per aver richiesto un appuntamento senza impegno con un nostro Consulente del Credito e Assicurativo.

Hai inserito correttamente tutti i dati necessari e a breve riceverai una e-mail con un link da convalidare per inviare i tuoi dati.
Affiliato
Studio Poggio Sas
Via Ardengo Soffici, 95/b 59016 Poggio A Caiano (PO)

Il nostro staff


  • Francesca Romagnoli
    Affiliata

  • Shana Maretti
    Collaboratrice

  • Martina Pompa
    Collaboratrice

  • Costanza Salvatore
    Coordinatrice
Via Ardengo Soffici, 95/b 59016 Poggio A Caiano (PO)
Zona: Poggio a Caiano - La Serra - Poggetto
Mostra su mappa
Affiliato
Studio Poggio Sas
Via Ardengo Soffici, 95/b 59016 Poggio A Caiano (PO)

2026 Tecnocasa Franchising S.p.A. - P. IVA 08365160152 - Via Monte Bianco 60/A 20089 Rozzano (MI). Ogni agenzia ha un proprio titolare ed è autonoma. Privacy policy | Policy utilizzo | Cookie policy