Casa indipendente in vendita

Poggio A Caiano, Via Masaccio
€ 619.000
7 locali 7 locali
250 Mq 250 Mq
3 bagni 3 bagni

Casa indipendente in vendita

Poggio A Caiano, Via Masaccio

Descrizione annuncio

VIA MASACCIO - POGGIO A CAIANO.

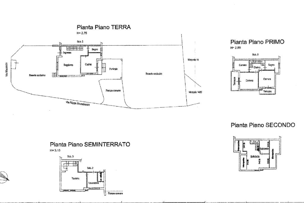
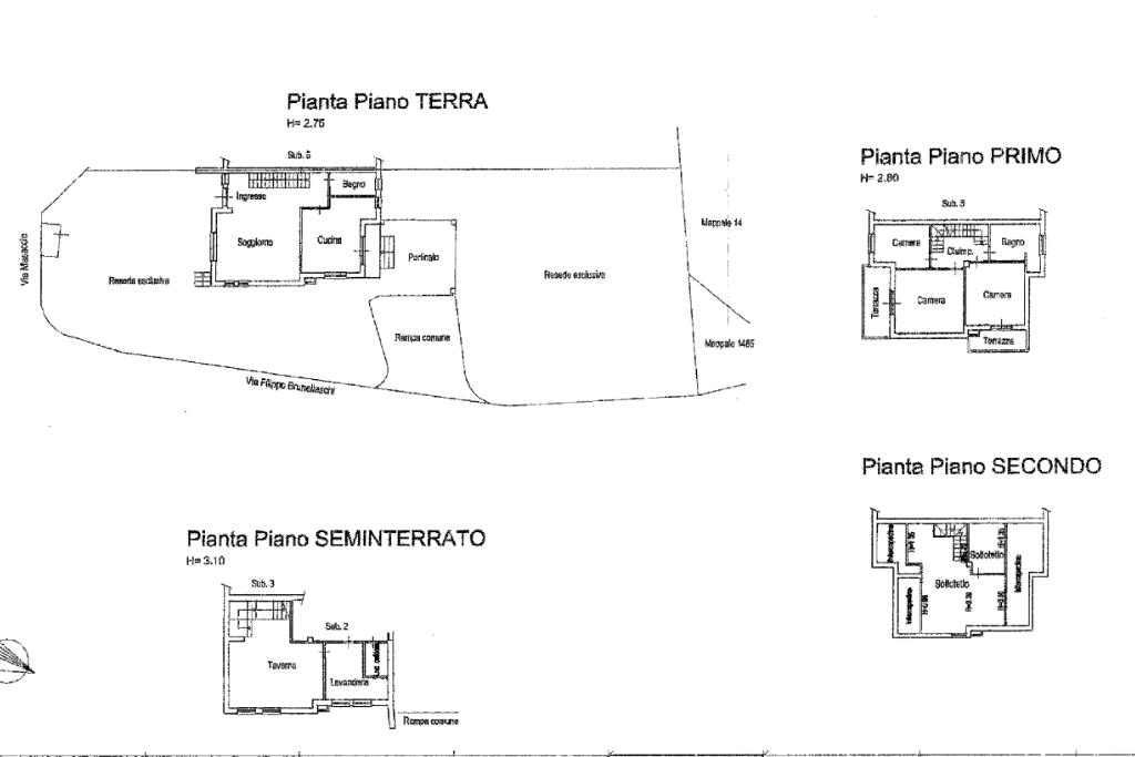
Splendida villa libera su tre lati con ampio giardino in posizione rialzata

In una delle zone più ricercate e tranquille, proponiamo in vendita una splendida villa libera su tre lati, circondata da un ampio e curato giardino che abbraccia la proprietà su tre lati, garantendo privacy e vivibilità in ogni stagione.

Dal cancello d’ingresso si accede a un elegante vialetto che conduce alla porta principale, dove veniamo accolti da un luminoso soggiorno, ben distribuito e in perfetta armonia con gli spazi della casa. La cucina abitabile, separata, è funzionale e accogliente; sempre al piano terra troviamo un bagno finestrato.

Dalla cucina si accede al porticato collegato direttamente al giardino, ideale per pranzi e cene all’aperto, arricchito da una comoda area barbecue perfetta per momenti conviviali con famiglia e amici.

Salendo al primo piano troviamo la zona notte composta da tre camere da letto: due ampie matrimoniali e una singola, oltre a un bagno finestrato. Le camere matrimoniali godono entrambe dell’accesso a due spaziosi terrazzi.

Al piano superiore, nel sottotetto, è stata ricavata una quarta camera con ulteriore bagno, perfetta come stanza ospiti o studio.

Il piano inferiore ospita una confortevole taverna, una zona lavanderia con locale caldaia e un comodo garage.

La villa si presenta in ottimo stato manutentivo ed è dotata di numerosi comfort: impianto di allarme, videosorveglianza, pozzo, impianto di irrigazione, cisterna d’acqua da 5.000 litri e autoclave.

Una soluzione ideale per chi cerca spazio, indipendenza e qualità della vita, in una posizione rialzata che regala luce, tranquillità e una piacevole vista.

Per visionare l'immobile e/o prendere un appuntamento contattare il numero 055877088 oppure inviare una mail a pohs3.

Mostra tutto

Nelle vicinanze

Trasporto pubblico Trasporto pubblico
Brunelleschi 5
Brunelleschi 5
40 m
Brunelleschi 1
Brunelleschi 1
90 m
Scuole Scuole
Scuola primaria Marco Polo
1,9 Km
Farmacia Farmacia
Zeppini
520 m
Farmacia
1,6 Km
Parretti
1,7 Km
Sant'Angelo
2,4 Km
Supermercati Supermercati
Penny Market
500 m
Chinese market
1,1 Km
Pam
1,3 Km
Negozi Negozi
Coop
1,7 Km
Bar Bar
Bar
650 m
Circolo Ambra
920 m
Ristoranti Ristoranti
Pizzeria La Tinaia
1,5 Km
ValleChiara
1,7 Km
La Furba
2,7 Km
Ristorante la Quercia di villa Castelletti
2,7 Km
Mostra tutto

Caratteristiche

Rif.:
61209542
Piano:
7 di 2 (Piano su più livelli)
Box:
1
Posti auto:
1
Terrazzi:
2
Camere da letto:
4
Mostra tutto
Prezzo Prezzo
€ 619.000
Rata mutuo Rata mutuo
€ 2.938 / mese
Spese annue Spese annue
€ 200
Proponi il tuo prezzoProponi il tuo prezzo

Classe Energetica

Questo immobile è esente da classe energetica
Anno di costruzione:
1989
Riscaldamento:
Autonomo
Tipo impianto:
A radiatori
Tipo alimentazione:
Metano

Ti interessa visionare l'immobile?

Fissa un appuntamento  Fissa un appuntamento

Richiedi informazioni

Clicca su Leggi per aprire l'informativa
* Questi campi sono obbligatori

Calcola il tuo mutuo

Semplice e senza impegno
Anticipo

( % )
Mutuo

( % )

pochi semplici passi

inserisci i tuoi dati
Questionario completato
Grazie per aver richiesto un appuntamento senza impegno con un nostro Consulente del Credito e Assicurativo.

Hai inserito correttamente tutti i dati necessari e a breve riceverai una e-mail con un link da convalidare per inviare i tuoi dati.
Affiliato
Studio Poggio Sas
Via Ardengo Soffici, 95/b 59016 Poggio A Caiano (PO)

Il nostro staff


  • Francesca Romagnoli
    Affiliata

  • Shana Maretti
    Collaboratrice

  • Martina Pompa
    Collaboratrice

  • Costanza Salvatore
    Coordinatrice
Via Ardengo Soffici, 95/b 59016 Poggio A Caiano (PO)
Zona: Poggio a Caiano - La Serra - Poggetto
Mostra su mappa
Affiliato
Studio Poggio Sas
Via Ardengo Soffici, 95/b 59016 Poggio A Caiano (PO)

2026 Tecnocasa Franchising S.p.A. - P. IVA 08365160152 - Via Monte Bianco 60/A 20089 Rozzano (MI). Ogni agenzia ha un proprio titolare ed è autonoma. Privacy policy | Policy utilizzo | Cookie policy